Projekt zgodny z wymaganiami WT2024.
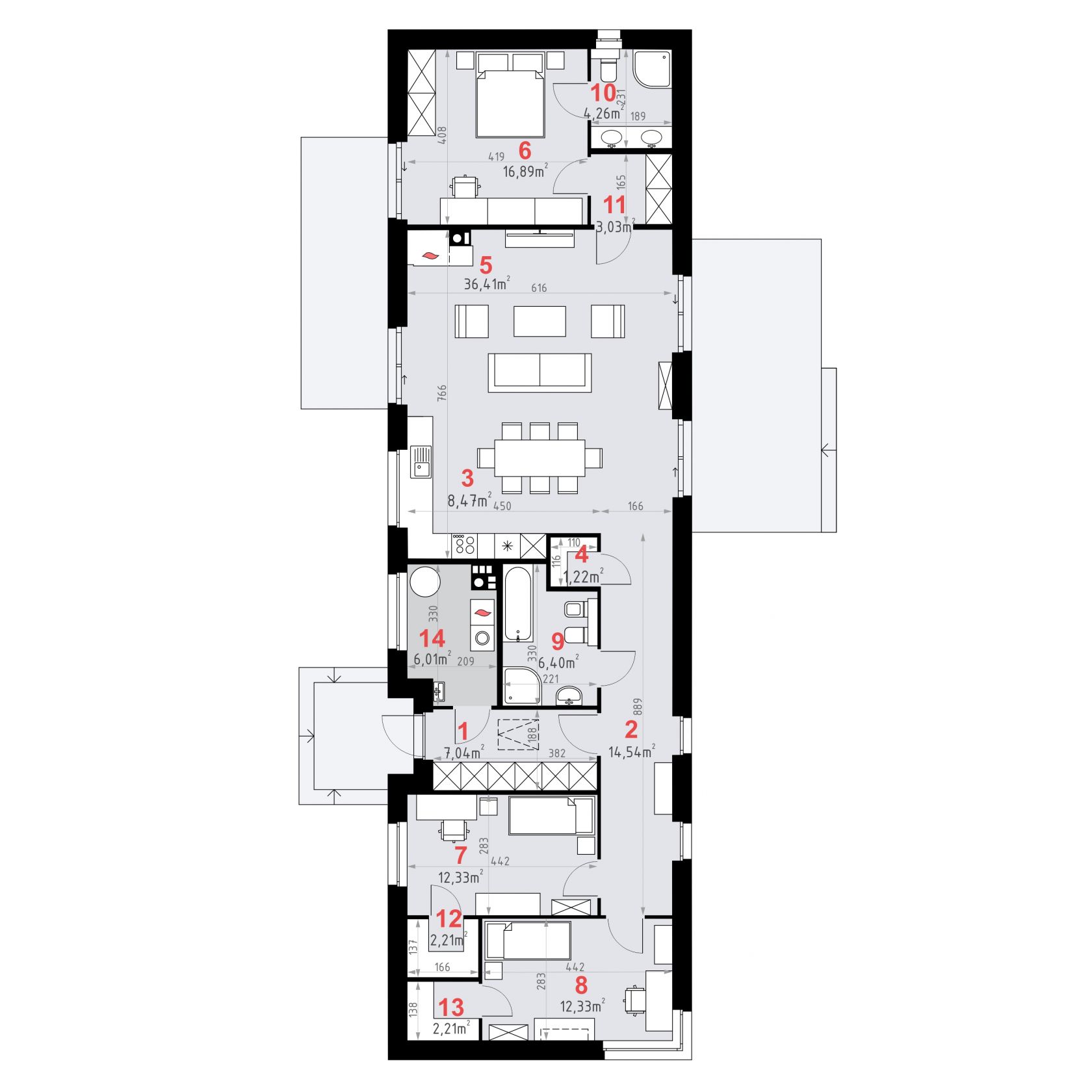
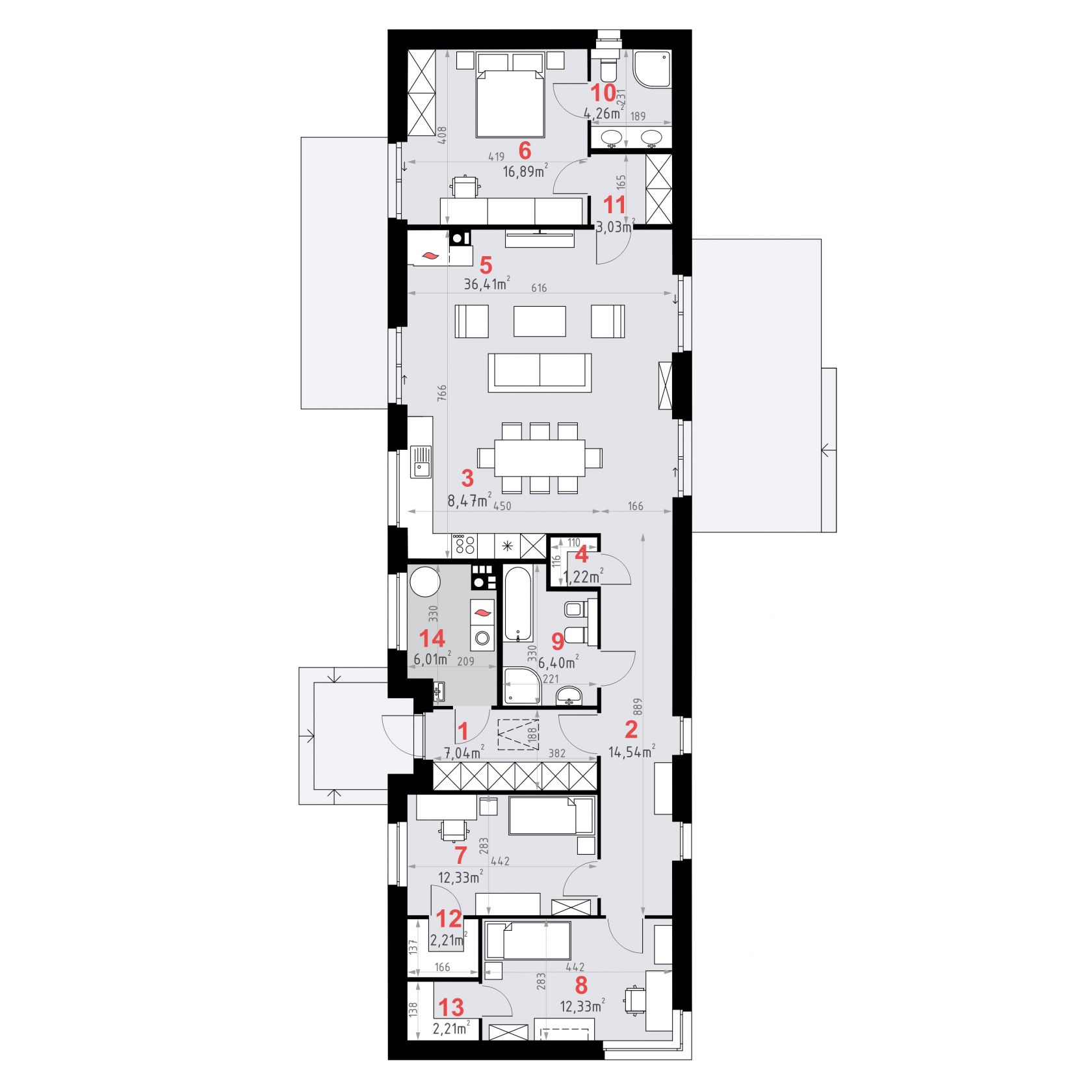
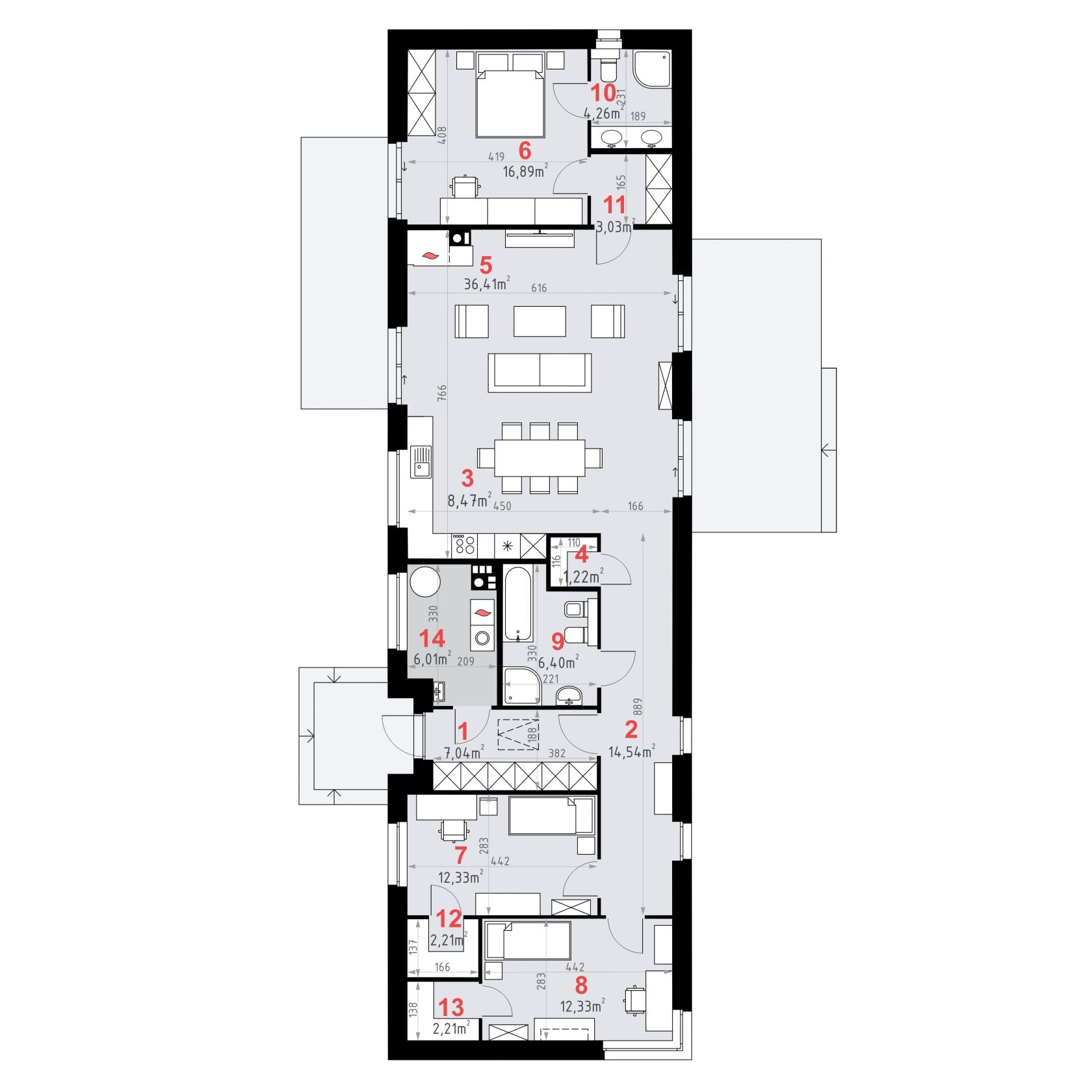
DOMENA 147 C została stworzona na wąską działkę.
Przedsionek z miejscem na szafę przechodzi w korytarz łączący strefy domu. Po jednej stronie znajduje się strefa dzienna składającą się z przestronnego salonu połączonego z jadalnią oraz kuchnią ze spiżarnią oraz ogólnodostępna łazienka. Za tą strefą mieści się część małżeńska z wygodą sypialnia, garderobą i prywatną łazienką. Po przeciwległej stronie domu mamy dwa pokoje z garderobami , które mogą pełnić funkcję pokoi dla dzieci. Pomieszczenie gospodarcze z piecem grzewczym dostępne jest z wiatrołapu.
Dom jest podobny do projektu: DOMENA 146 C, DOMENA 123, DOMENA 122, DOMENA 130 C, DOMENA 103, DOMENA 106, DOMENA 108, DOMENY 107, TIMOR 3.
Projekt w standardzie posiada dodatkowo projekt ogrzewania kominkiem z płaszczem wodnym.
Wizualizacja jest propozycją tego jak dany projekt domu oraz jego otoczenie można zaaranżować. Sposób prowadzenia tarasu, kształt murków i elementy małej architektury typu pergole, donice itp. nie są objęte zakresem projektu. W związku z powyższym na projekcie budowlanym elementy te mogą nie być uwzględnione w projekcie ( patrz pergole ) lub zmieniony może być ich kształt i sposób prowadzenia ( wielkości tarasów, profil murków )