Projekt zgodny z wymaganiami WT2024.
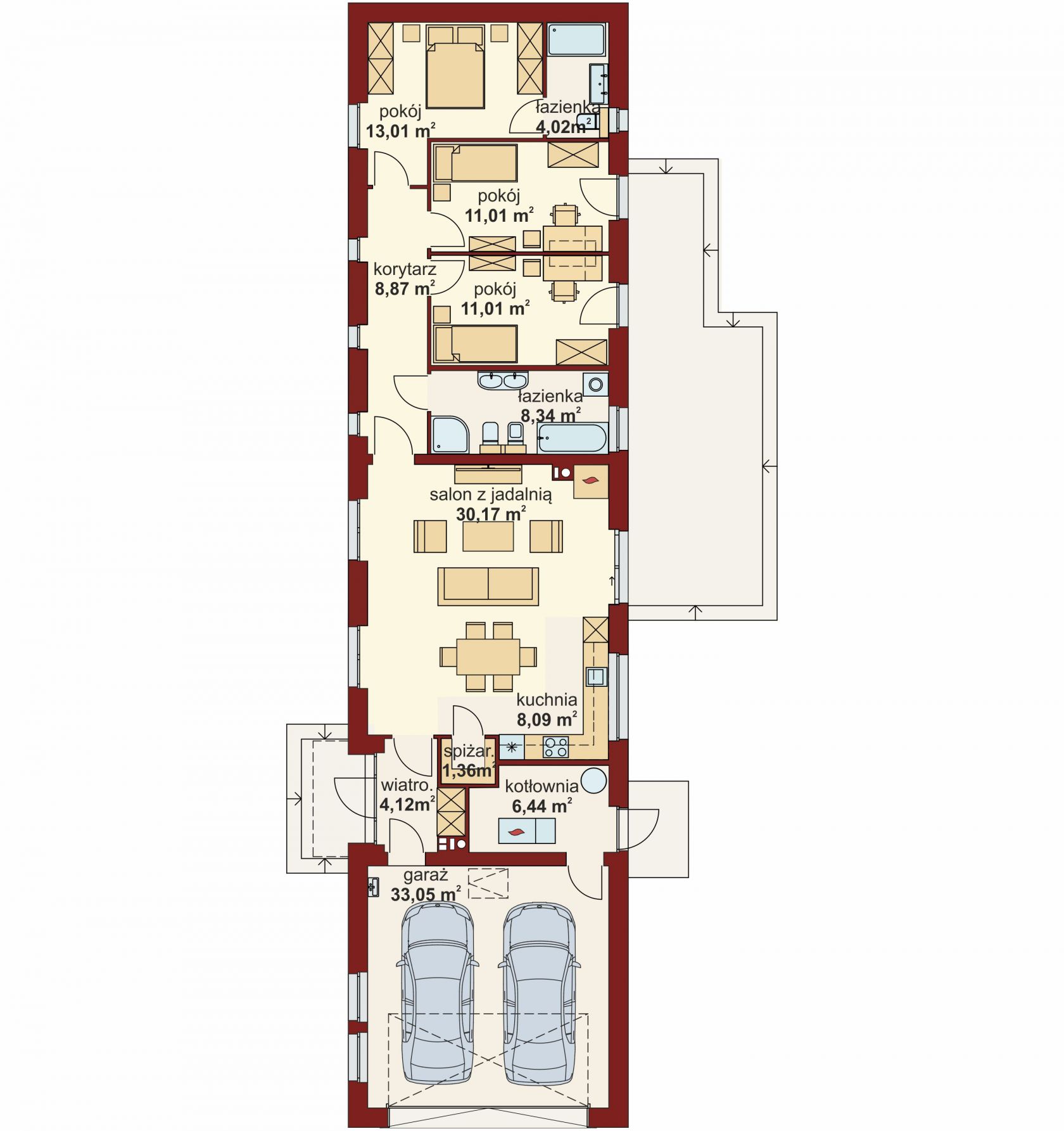
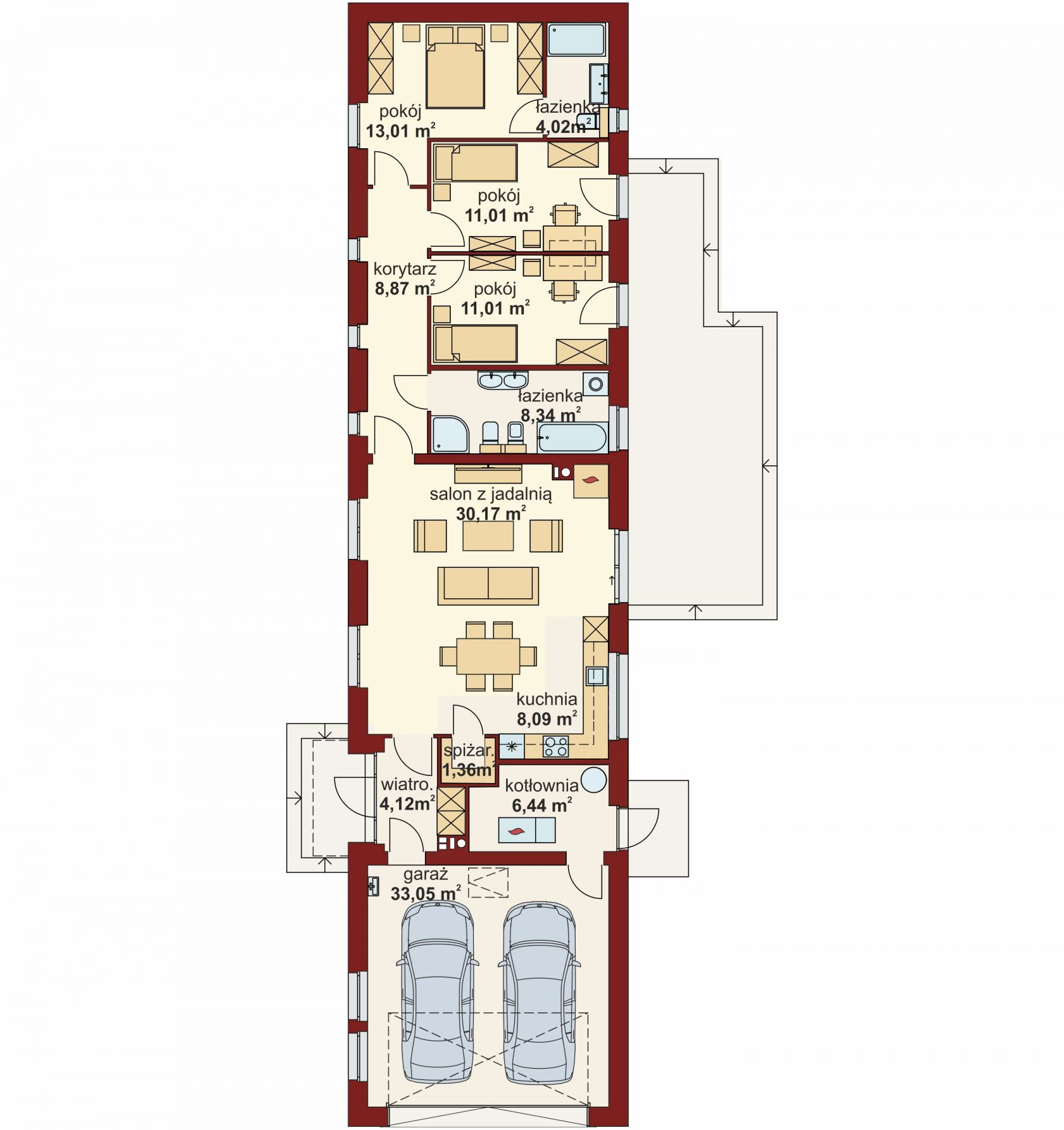
DOMENY 148 B to projekt stworzony na wąską działkę.
Przedsionek z miejscem na szafę otwiera się na strefę dzienną, składającą się z przestronnego salonu połączonego z jadalnią i kuchnią ze spiżarnią. Z korytarza mamy dostęp do dwóch pokoi, łazienki oraz sypialni małżeńskiej, do której przylega kolejna łazienka. Duży, dwustanowiskowy garaż oraz kotłownia znajdują się za wiatrołapem.
Dom jest podobny do projektu: DOMENA 123 B1.
Projekt w standardzie posiada dodatkowo projekt ogrzewania kominkiem z płaszczem wodnym.
Wizualizacja jest propozycją tego jak dany projekt domu oraz jego otoczenie można zaaranżować. Sposób prowadzenia tarasu, kształt murków i elementy małej architektury typu pergole, donice itp. nie są objęte zakresem projektu. W związku z powyższym na projekcie budowlanym elementy te mogą nie być uwzględnione w projekcie ( patrz pergole ) lub zmieniony może być ich kształt i sposób prowadzenia ( wielkości tarasów, profil murków )