Projekt zgodny z wymaganiami WT2024.
DOMENA 146 C została stworzona na wąską działkę.
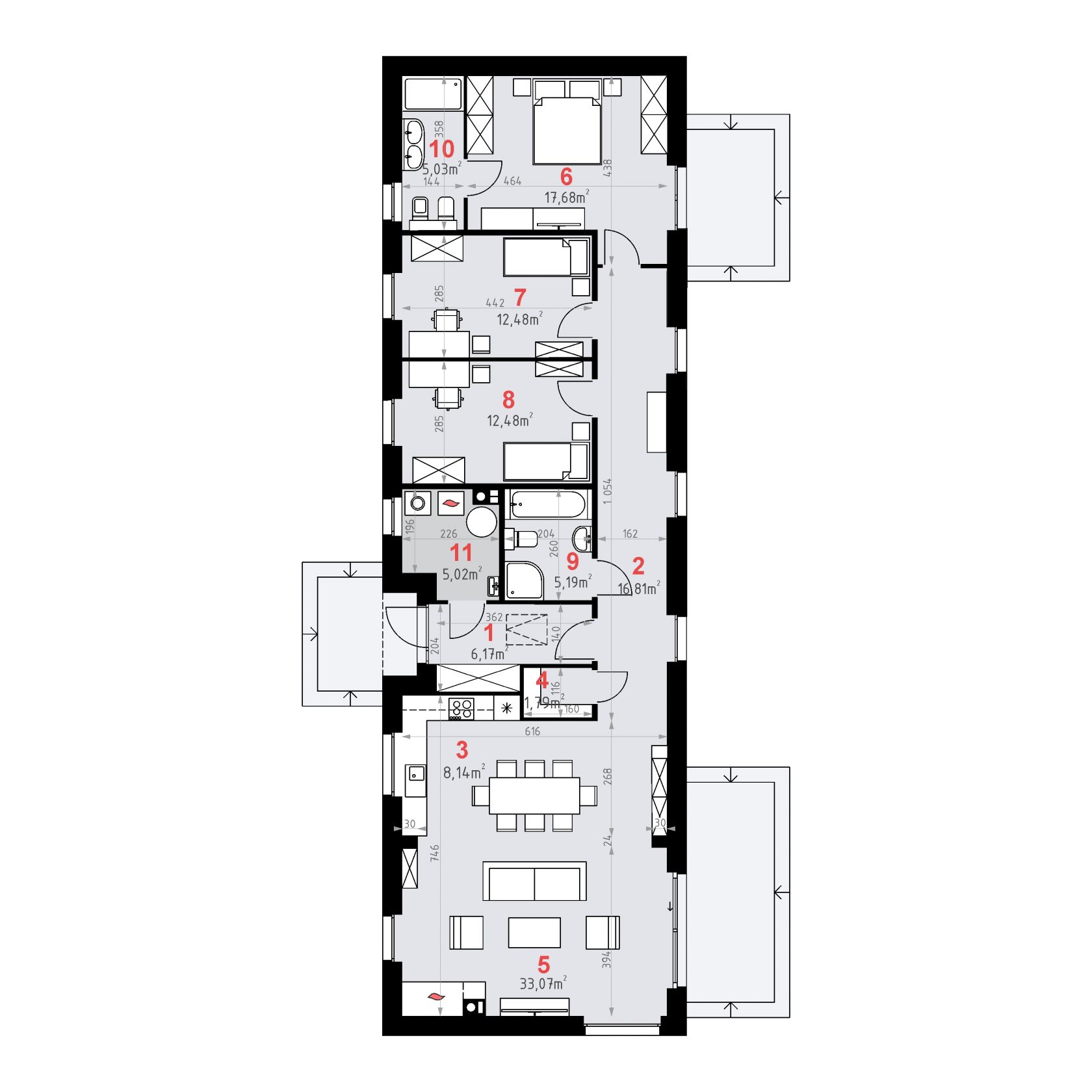
Przedsionek z miejscem na szafę przechodzi w korytarz łączący strefę dzienną, składającą się z przestronnego salonu połączonego z jadalnią oraz kuchnią ze spiżarnią, ze strefą prywatną składająca się z dwóch pokoi, łazienki oraz sypialni małżeńskiej, do której przylega kolejna łazienka. Pomieszczenie gospodarcze z piecem grzewczym dostępne jest z wiatrołapu.
Dom jest podobny do projektu: DOMENA 123, DOMENA 122, DOMENA 130 C, DOMENA 103, DOMENA 106, DOMENA 108, DOMENY 107, TIMOR 3.
Projekt posiada możliwość ogrzewania ogrzewania kominkiem.
Wizualizacja jest propozycją tego jak dany projekt domu oraz jego otoczenie można zaaranżować. Sposób prowadzenia tarasu, kształt murków i elementy małej architektury typu pergole, donice itp. nie są objęte zakresem projektu. W związku z powyższym na projekcie budowlanym elementy te mogą nie być uwzględnione w projekcie ( patrz pergole ) lub zmieniony może być ich kształt i sposób prowadzenia ( wielkości tarasów, profil murków )