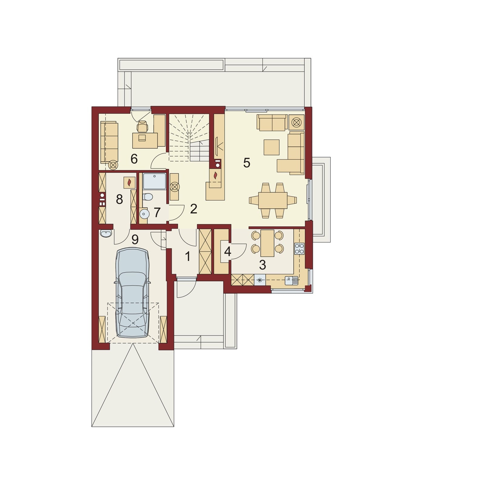
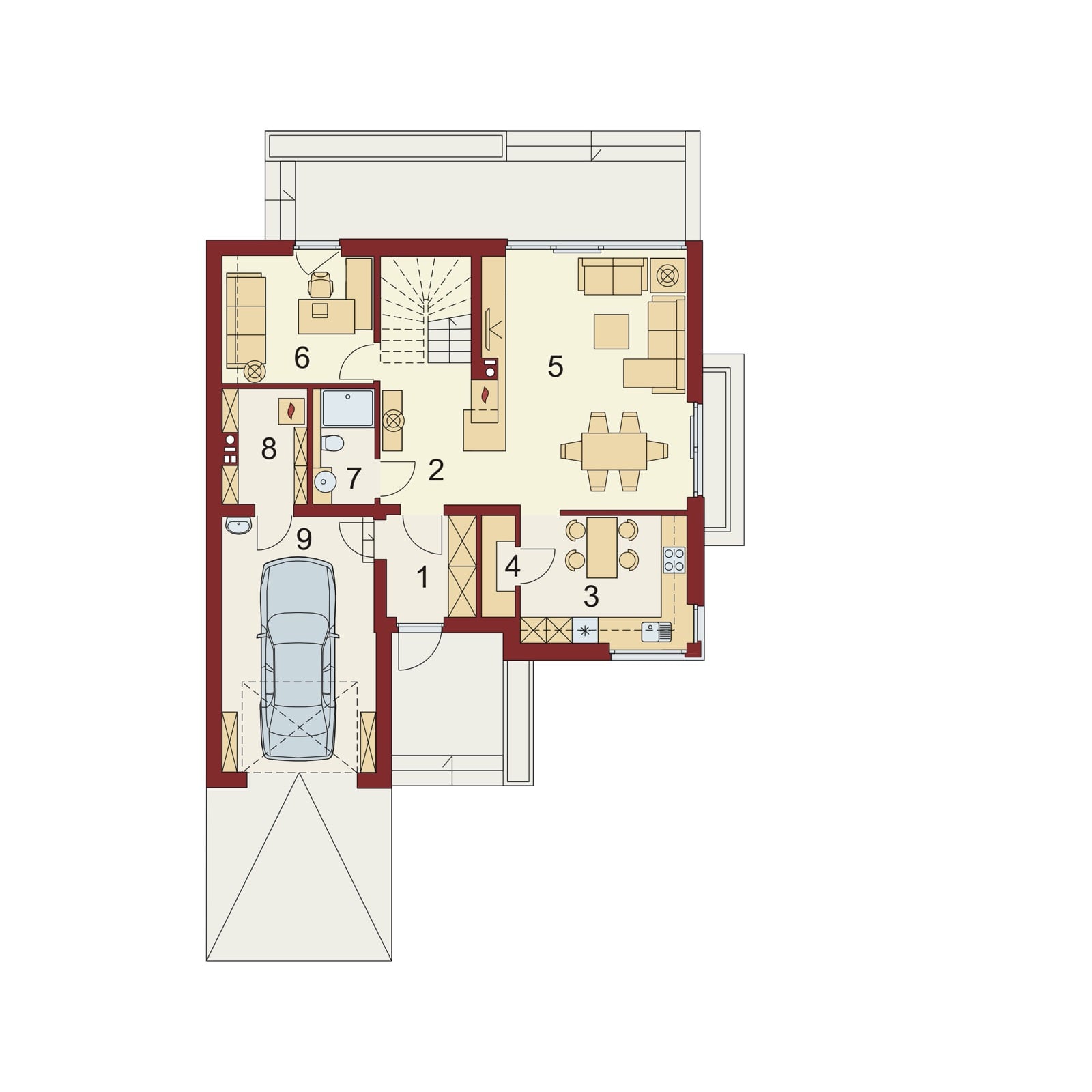
BRUNO to dom parterowy z poddaszem użytkowym, zaprojektowany dla 4-5-osobowej rodziny. Za wyposażonym w praktyczną garderobę wiatrołapem ukazuje się obszerny salon z jadalnią i wejście do kuchni. Oddzieloną kuchnię można z łatwością połączyć z salonem. Dopełnieniem dla kuchni jest użyteczna spiżarnia. Na parterze znajduje się także pokój, który może pełnić rolę gabinetu, pokoju gościnnego lub kolejnej sypialni oraz łazienka. Z przedsionka dostępny jest również jednostanowiskowy garaż z funkcjonalnym przejściem do kotłowni. Na poddaszu znajduje się strefa nocna domu, która składa się z trzech sypialni, ogólnodostępnej łazienki połączonej z praktyczną pralnią oraz garderoby dostępnej z głównej sypialni.
Projekt w standardzie posiada dodatkowo projekt ogrzewania kominkiem z płaszczem wodnym.
Projekt jest podobny do projektu Pandora PS, Wera PS oraz Amoniusz. Posiada również swoją wersję z garażem dwustanowiskowym- Bruno 2 PS, w której przewidziano ogrzewanie na paliwo stałe, lub jako alternatywa- gazowe, do wyboru dla klienta wg. wymagań.
Polecamy zakup kosztorysu inwestorskiego, w którym wyszczególniono zestawienia potrzebne do wybudowania wymarzonego domu. Kosztorysy są sporządzane wg. uśrednionych kwot krajowych, baz cenowych Sekocenbudu i aktualizowane dwa razy w roku. Za niewielką kwotę zyskujecie Państwo kontrolę nad ilością zakupionych materiałów oraz wiedzę potrzebną do negocjacji z ekipami budowlanymi, a w przypadku budowy systemem gospodarczym możliwość zaplanowania wydatków i stworzenia rzetelnego harmonogramu prac.
System gospodarczy- inwestor sam nadzoruje prace, organizuje i dowozi materiały budowlane oraz sprzęt, a także sam lub z pomocą rodziny, czy znajomych, wykonuje niektóre prace budowlane. Szacunkowo można tą metodą zaoszczędzić od 27-32% kosztów.
KOSZTORYS NA TRZECI KWARTAŁ 2017
Ceny średnie netto
Ceny minimalne netto
Stan surowy zamknięty
195 351 zł
167 697 zł
Stan deweloperski
288 673 zł
243 409 zł
Instalacje
56 117 zł
47 318 zł
Stan deweloperski systemem gospodarczym bez instalacji (orientacyjnie)
202 071 zł
170 386 zł
Koszt rekuperacji
15 900 zł
15 900zł
Propozycje rozwiązań materiałowych:
Fundamenty
bezpośrednie, na ławach fundamentowych
Ściany zewnętrzne
bloczki z bet. komórkowego (odm. 600) - 24 cm + styropian TERMO ORGANIKA typ Fasada 16 cm
Ściany wewnętrzne
bloczki z bet. komórkowego (odm. 600) - 24 cm (działowe - 12 cm) + działowe z płyty G-K na ruszcie (poddasze)
Strop
gęstożebrowy Teriva I oraz żelbetowy monolityczny gr. 14 i 20 cm.
Elewacje
tynk - System Platinum firmy TERMO ORGANIKA, deska elewacyjna lub płytki klinkierowe
Pokrycie dachu
dachówka cementowej zakładkowej
Konstrukcja dachu
drewniana o układzie konstrukcyjnym krokwiowo-jętkowym
Schody wewnętrzne
drewniane wg indywidualnego projektu
Ogrzewanie
kocioł gazowy kondensacyjny, dodatkowe źródło ciepła - kominek z płaszczem wodnym
Czy przy adaptacji projektu istnieje możliwość wyrównania ścian frontowych tzn. wejście i kuchnia w jednej linii. I czy przy podniesieniu ścianki kolankowej jest możliwe zmniejszenie konta dachu?