DOMENA 210 B1 należy do serii nowoczesnych domów z poddaszem oraz garazem na dwa stanowiska.
To nowoczesny dom który zachwyca stylem nowoczesnej stodoły.
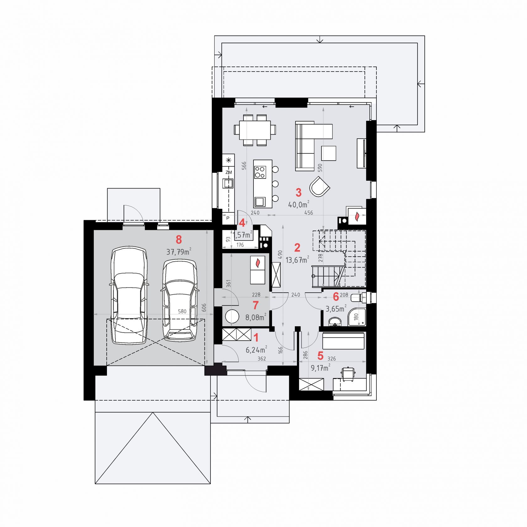
Cześć dzienna oddalona od wejścia, zapewnia spokój osobom wypoczywającym w tej strefie. Gabinet i łazienka w pobliżu wiatrołapu. W salonie prezentuja sie duze okna z widokiem na ogrod naturalnie laczace wnętrze z otoczeniem pozwalając cieszyc się swiatlem dziennym przez caly rok.
Na poddasze prowadza wygodne schody ze spocznikiem.
Poddasze o duzych walorach funkcjonalnych. Sypialnia z garderoba oddalona od pokoi dzieciecych, lazienka, pralnia, garderoba.
Polecamy zakup kosztorysu inwestorskiego, w którym wyszczególniono zestawienia potrzebne do wybudowania wymarzonego domu. Kosztorysy są sporządzane wg. uśrednionych kwot krajowych, baz cenowych Sekocenbudu i aktualizowane dwa razy w roku. Za niewielką kwotę zyskujecie Państwo kontrolę nad ilością zakupionych materiałów oraz wiedzę potrzebną do negocjacji z ekipami budowlanymi, a w przypadku budowy systemem gospodarczym możliwość zaplanowania wydatków i stworzenia rzetelnego harmonogramu prac.
System gospodarczy- inwestor sam nadzoruje prace, organizuje i dowozi materiały budowlane oraz sprzęt, a także sam lub z pomocą rodziny, czy znajomych, wykonuje niektóre prace budowlane. Szacunkowo można tą metodą zaoszczędzić od 27-32% kosztów.
Ceny średnie zostały ustalone na podstawie średnich cen na rynku w odniesieniu do faktycznych materiałów użytych w projekcie.
Minimalne ceny obrazują koszt budowy domu w oparciu o najtańsze materiały na rynku. Wycenione materiały są o podobnych parametrach jak użyte w projekcie, ale innych producentów.
KOSZTORYS
Ceny średnie netto
Ceny minimalne netto
Stan surowy zamknięty
zł
zł
Stan deweloperski
zł
zł
Instalacje
zł
zł
Stan deweloperski systemem gospodarczym bez instalacji (orientacyjnie)
zł
zł
Koszt rekuperacji
Propozycje rozwiązań materiałowych:
Fundamenty
bezpośrednie, na ławach i stopach fundamentowych
Ściany zewnętrzne
bloczki wapienno-piaskowe - 24 cm + styropian TERMO ORGANIKA typ Fasada 20-24cm
Ściany wewnętrzne
bloczki wapienno-piaskowe – 24 cm, działowe – bloczki wapienno-piaskowe - 8 cm, 12 cm (parter) + dzialowe z płyty G-K na ruszcie ( poddasze)
Strop
żelbetowy monolityczny
Elewacje
tynk - systemowy firmy TERMO ORGANIKA, okładzina imitująca drewno