Domena 132 B1

pow. użytkowa 124.62 m²

4950.00 zł

+ Kotłownia: 6.32 m²

+ Garaż: 33.53 m²

+ Strych: 70.16 m²

4950.00 zł

Domena 132 B1
Domena 132 B1
Domena 132 B1
Domena 132 B1
Domena 132 B1
Domena 132 B1
Domena 132 B1

Domena 132 B1

pow. użytkowa 124.62 m²

+ Kotłownia: 6.32 m²

+ Garaż: 33.53 m²

+ Strych: 70.16 m²

4950.00 zł




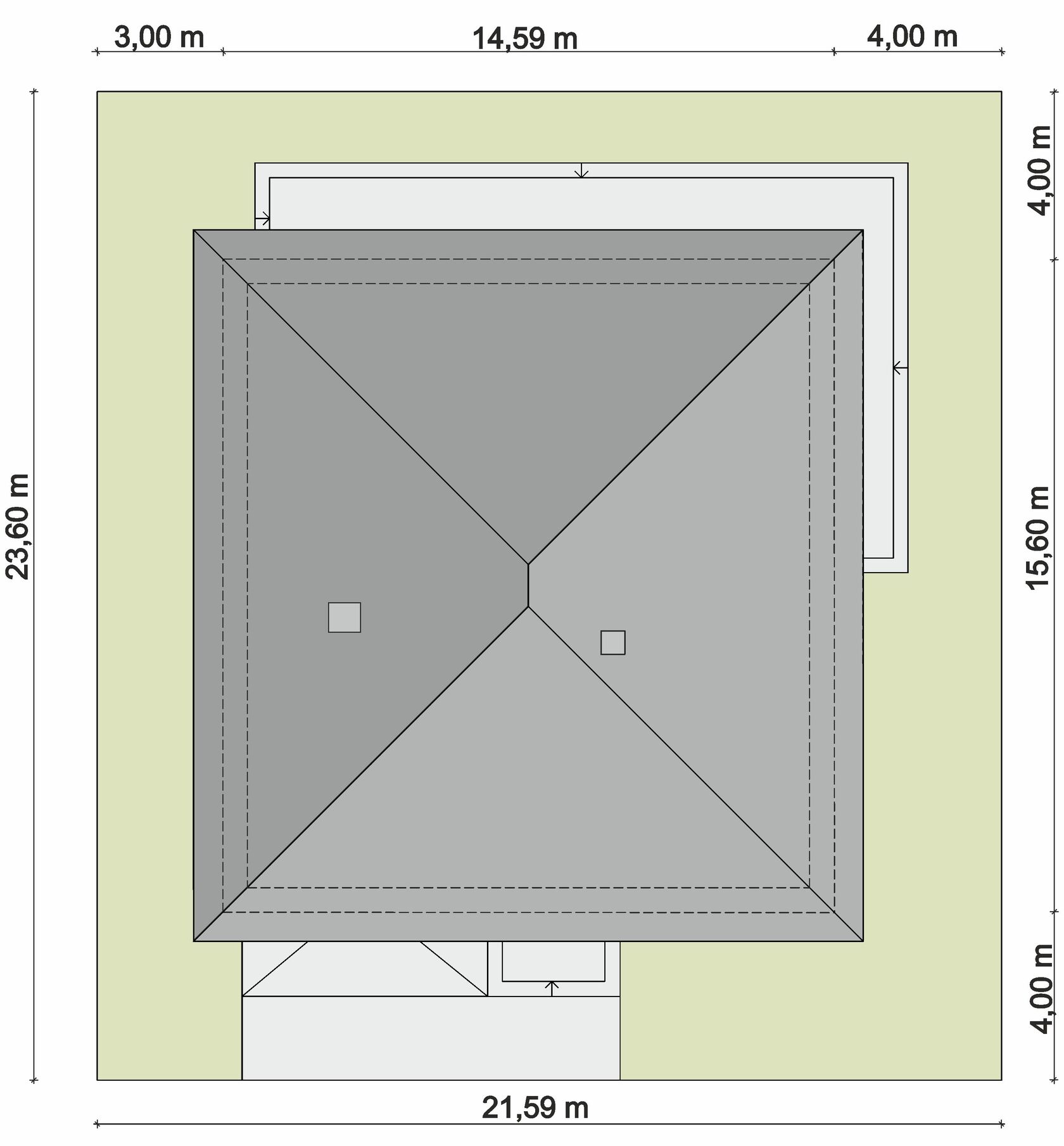
Pow. użytkowa: 124.62 m²

Pow. zabudowy: 227.46 m²

Szer. działki min: 21.58 m

Dł. działki min: 23.58 m

Wysokość budynku: 8.035 m

Kubatura netto: 483.86 m³

Kąt dachu: 30°

Pow. dachu: 293.8 m

Dach: czterospadowy

Kalenica: inna

Wnętrza

Rzuty

Zmierz odległość
Rzut
Zmierz odległość
Rzut

Elewacje

Elewacje
Elewacje
Elewacje
Elewacje

Plan i przekrój

Wersje projektu

Domena 132 B 119.03 m²

Dyskusja

Posty (1)Sortuj: najnowsze | najstarsze
Stegna-andrzej | 2023-01-31 05:18:29ODPOWIEDZ
Witam czy mają państwo więcej zdjęć domeny 130c. pilipowicz.andrzej@wp.pl czy ktos juz z państwa wybudowal i moze podzielic sie swoim doswiadczeniem prosimy o kontakt pozdrawiamy

Podobne projekty

Domena 124 B1 129.33 m²
Domena 129 B 119.21 m²
Domena 131 B 139.16 m²
Domena 136 B 129.99 m²
aluprof

PROMOCJA -300 zł DO KOŃCA PROMOCJI POZOSTAŁO:

Ładowanie licznika...