Domena 131 B

pow. użytkowa 139.16 m²

4950.00 zł

+ Kotłownia: 6.43 m²

+ Garaż: 33.53 m²

+ Strych: 77.93 m²

4950.00 zł

Domena 131 B
Domena 131 B
Domena 131 B
Domena 131 B
Domena 131 B
Domena 131 B
Domena 131 B
Domena 131 B
Domena 131 B

Domena 131 B

pow. użytkowa 139.16 m²

+ Kotłownia: 6.43 m²

+ Garaż: 33.53 m²

+ Strych: 77.93 m²

4950.00 zł




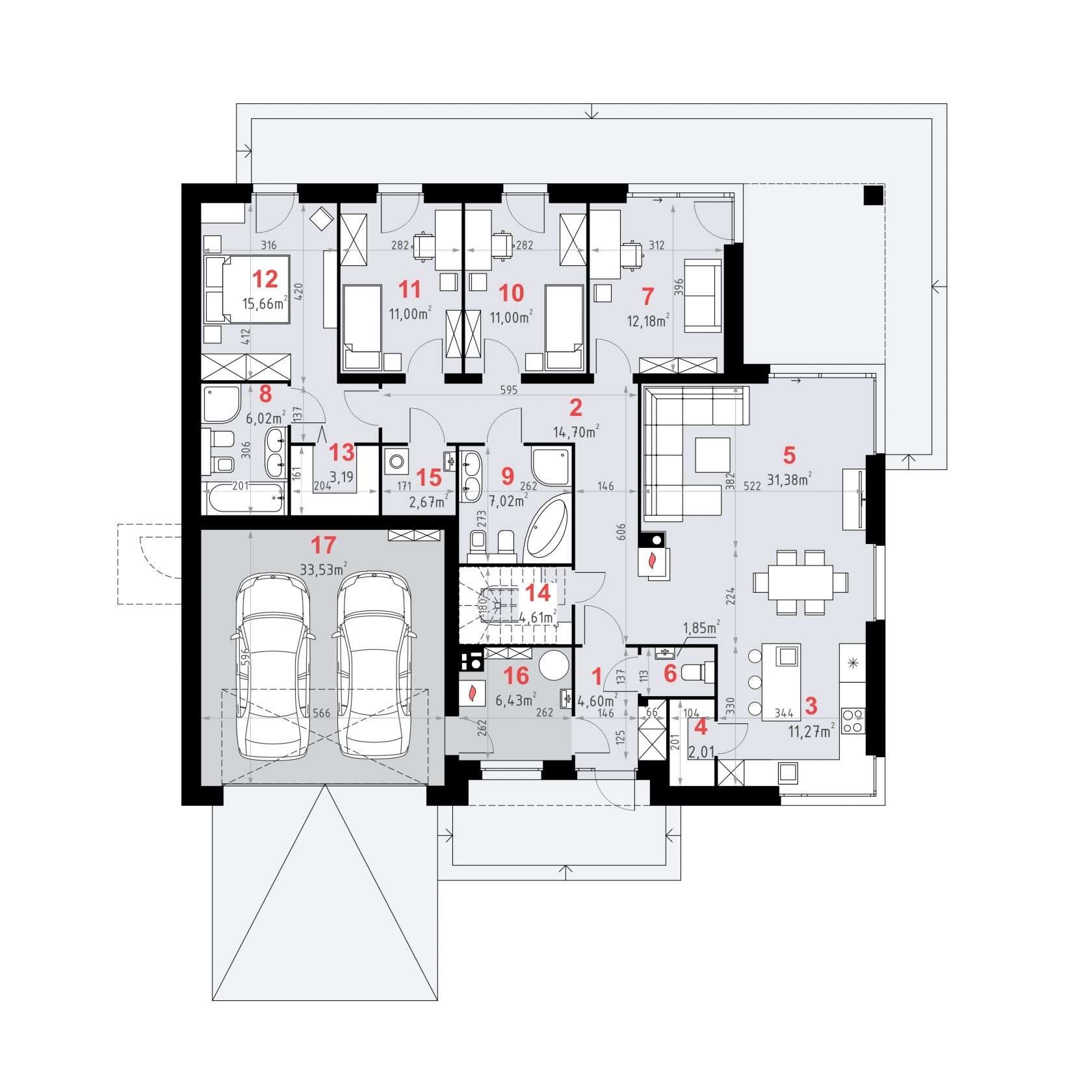
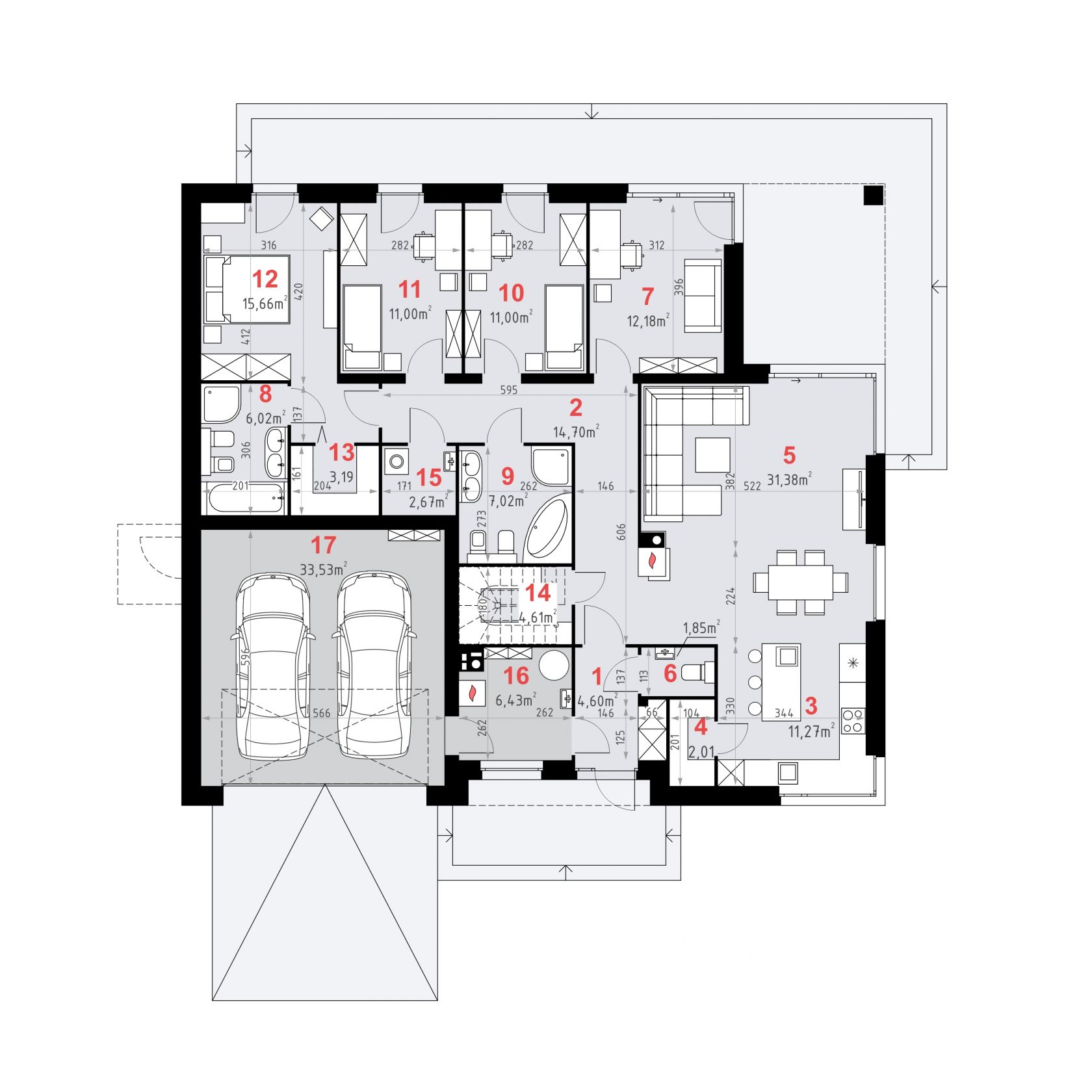
Pow. użytkowa: 139.16 m²

Pow. zabudowy: 237.49 m²

Szer. działki min: 23.38 m

Dł. działki min: 22.48 m

Wysokość budynku: 8.02 m

Kubatura netto: 511.41 m³

Kąt dachu: 30°

Pow. dachu: 326.1 m

Dach: czterospadowy

Kalenica: inna

Wnętrza

Rzuty

Zmierz odległość
Rzut
Zmierz odległość
Rzut

Elewacje

Elewacje
Elewacje
Elewacje
Elewacje

Plan i przekrój

Dyskusja

Posty (41)Sortuj: najnowsze | najstarsze
~Katarzyna | 2021-03-23 11:38:45ODPOWIEDZ
Dzień dobry, prosze o przesłanie rzutów i kosztorysu na kasiasiwecka5@wp.pl
DOMENA Pracownia Projektowa | 2021-03-23 11:46:43ODPOWIEDZ
Materiały zostały wysłane na wskazany adres.
~Beata Klimkiewicz | 2021-03-24 13:08:41ODPOWIEDZ
Witam,czy można w przybliżeniu podać koszt budowy do stanu surowego zamkniętego. I jeszcze jedna rzecz czy zamiast tej łazienka można jakoś wydzielić ciut większą przestrzeń na kolejny mały pokoik?Proszę informację przesłać na adres beaklim@wp.pl
~kamila | 2021-04-25 23:39:06ODPOWIEDZ
Dzień dobry. Prosze o przesłanie rzutów i kosztorysu na adres kamnilla@wp.pl
DOMENA Pracownia Projektowa | 2021-04-26 15:40:37ODPOWIEDZ
Dzień dobry, materiały dotyczące rzutów i kosztorysów zostały wysłane na podany adres mailowy.
~Jędrzej | 2021-04-27 13:27:51ODPOWIEDZ
Dzień dobry, proszę o przesłanie rzutów i kosztorysu na adres jedrzej.strzyzewski@gmail.com. Z góry dziękuję.
DOMENA Pracownia Projektowa | 2021-04-27 15:01:00ODPOWIEDZ
Dzień dobry, rzuty i kosztorys zostały wysłane na podany adres mailowy.
~Agata | 2021-04-27 23:09:42ODPOWIEDZ
Dzień dobry, proszę o wysłanie rzutów i kosztorysu na adres agata.sliwowska@wp.pl. Będę bardzo wdzięczna. Pozdrawiam.
DOMENA Pracownia Projektowa | 2021-04-28 09:07:12ODPOWIEDZ
Dzień dobry, materiały poglądowe rzutów i kosztorysów do projektu Domena 131 B zostały wysłane na podany adres mailowy.
~Jacek | 2021-05-04 19:03:39ODPOWIEDZ
Witam, proszę o przesłanie rzutów i kosztorysu na jacek770211@gmail.com
DOMENA Pracownia Projektowa | 2021-05-05 08:06:02ODPOWIEDZ
Materiały zostały przesłane na wskazany adres.
~iwona | 2021-05-05 18:43:03ODPOWIEDZ
Dzień dobry, prosze o przesłanie rzutów i kosztorysu na demiane@interia.pl. Czy w projekcie uwzględniona jest płyta gazowa w kuchni?
DOMENA Pracownia Projektowa | 2021-05-06 09:29:09ODPOWIEDZ

Dzień dobry, materiały zostały wysłane na podany adres mailowy. W odpowiedzi na pytanie o płytę gazową, tak jest uwzględniona.

~Iwona | 2021-05-09 17:42:25ODPOWIEDZ
Czy ktoś buduje/budowal z tego projektu i podzieli się zdjęciami z realizacji.?
~Dominika | 2021-05-13 06:14:48ODPOWIEDZ
Dzień dobry, proszę o przesłanie rzutów i kosztorysu na adres Dominika.klos@mail.com
DOMENA Pracownia Projektowa | 2021-05-13 08:20:02ODPOWIEDZ
rzuty i kosztorys do projektu DOMENA 131 B zostały wysłane na podany adres mailowy.
~Michał | 2021-05-13 20:49:46ODPOWIEDZ
Dzień dobry, prosze o przesłanie rzutów i kosztorysu na chmielu240@interia.pl
~Gosia | 2021-05-17 10:34:29ODPOWIEDZ
Dzień dobry, proszę o wysłanie rzutów i kosztorysu na adres stolaar@o2.pl. pozdrawiam.
DOMENA Pracownia Projektowa | 2021-05-17 11:09:43ODPOWIEDZ
Materiały poglądowe wraz z kosztorysem zostały wysłane na podany adres mailowy
~Bartek | 2021-05-17 12:54:43ODPOWIEDZ
Bardzo proszę o przesłanie rzutów i kosztorysu na bartek_waluszko@tlen.pl
DOMENA Pracownia Projektowa | 2021-05-17 13:22:10ODPOWIEDZ
materiały wysłane na podany adres mailowy
~Paweł | 2021-06-12 14:44:05ODPOWIEDZ
Dzień dobry. Prosze o przesłanie rzutów i kosztorysu na adres niczyj1991@gmail.com
~Piotr | 2021-08-07 13:40:08ODPOWIEDZ
Dzień dobry, prosze o przesłanie rzutów i kosztorysu na piotrwilczynski87@wp.pl
~Agata | 2021-08-11 22:43:22ODPOWIEDZ
Witam, proszę o przesłanie rzutów i kosztorysu na adres d.agataa@gmail.com Dziękuję
~Dominika | 2021-09-14 11:29:05ODPOWIEDZ
Dzień dobry, proszę o przesłanie rzutów i kosztorysu na adres domikuna00@gmail.com
~Michał | 2021-10-19 13:23:42ODPOWIEDZ
Proszę o wysłanie rzutów na maila jozefczyk.michal91@gmail.com
~ Treść komentarza | 2021-10-28 12:21:55ODPOWIEDZ
Dzień dobry, prosze o przesłanie rzutów i kosztorysu na adres beaklim@wp.pl
~Elżbieta | 2023-02-09 05:45:13ODPOWIEDZ
Dzień dobry Czy można zmienić projekt dachu na 37 stopni?
DOMENA Pracownia Projektowa | 2023-02-09 09:34:31ODPOWIEDZ
Możliwość istnieje ( my się tym nie zajmujemy) ale ze względów estetycznych nie zalecamy :)
~Hubert | 2023-03-03 14:36:05ODPOWIEDZ
Dzień dobry, proszę o przesłanie kosztorysu na hubert.krysciak@gmail.com
DOMENA Pracownia Projektowa | 2023-03-03 15:35:20ODPOWIEDZ
Pełny kosztorys jest płatny, wysłaliśmy to co udostępniamy.

Podobne projekty

Domena 124 B1 129.33 m²
Domena 125 B 138.64 m²
Domena 126 B 129.84 m²
Domena 129 B 119.21 m²
Domena 132 B 119.03 m²
Domena 136 B 129.99 m²
aluprof

PROMOCJA -300 zł DO KOŃCA PROMOCJI POZOSTAŁO:

Ładowanie licznika...